Städtisch wohnen – Naturnah leben
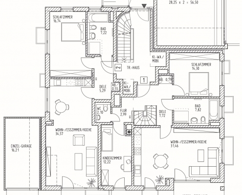
Wer sich einen Traum erfüllen will und ein Zuhause in Stadtlage nahe eines Sees sucht, sollte bei unserem Wohnprojekt Balsaminen1 schnellstens zugreifen. Wir errichten auf unserem ruhigen und sonnigen Grundstück ein Wohnhaus mit insgesamt fünf Eigentumswohnungen. Die Wohnbereiche der Zwei – bis Vierzimmerwohnungen sind nach Südwesten ausgerichtet und bestechen durch großzügige Grundrisse. Die besondere Lage und die gute Ausstattung mit großen Bädern, bodengleichen Duschen im EG, Fußbodenheizung und Eichenparkett runden unser Angebot zu einer wertvollen Immobilie ab.
Allgemeines
Abweichungen zwischen dargestellten Fassaden und Grundrissen bleiben vorbehalten. Alle Angaben wurden mit Sorgfalt zusammengestellt, eine Haftung kann jedoch daraus nicht abgeleitet werden. Änderungen bleiben vorbehalten. Für die Richtigkeit perspektivischer oder zeichnerischer Darstellung wird nicht gehaftet. Zeichnerisch dargestellte Möbel und Außenanlagen sind nicht in unserer Leistung enthalten.











